VENTA DESARROLLO EN MAR DE AJO NORTE - IBIZA 3

direccion Belgrano 750, Mar De Ajó

volver Volver al listado
left
right
left
right

Venta

USD 35.000

  • Oportunidad
  • Tipo de propiedad Departamentos
  • ambientes 3 Ambientes
  • toilet 1 baño
  • cama 2 Dormitorios
  • Disposicion Disposicion Frente
  • Orientacion Orientación Norte
  • Apto crédito Con apto crédito
  • Permuta Acepta permuta
  • Anticipo y cuotas Anticipo y cuotas
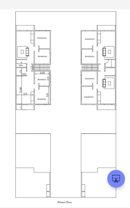
  • Superficie cubierta Sup. cubierta 52m2
  • Superficie total Sup. total 80m2
  • Antiguedad Antigüedad A estrenar

Acerca de la propiedad

IBIZA 3

BELGRANO 750 ENTRE CALLES TUCUMAN Y SALTA, MAR DE AJO NORTE
MAR DE AJO NORTE
A  750 M DEL MAR !!!!
A METROS DE PLENO CENTRO COMERCIAL DURANTE TODO EL AÑO (AV. TUCUMAN)
Y A METROS DEL ASFALTO

FINAL DE OBRA DICIEMBRE 2026

DESARROLLO EN POZO
COMPLEJO DE 10 UNIDADES FUNCIONALES
ORIENTACION NORTE

CADA UNIDAD FUNCIONAL CUENTA CON LA COMODIDAD DE UN DEPARTAMENTO DE TRES AMBIENTES, LAS MISMAS CUENTAN CON BALCONES CON PARRILLAS Y PILETA LAVADERO, SALVO 2 UNIDADES FUNCIONALES DE PLANTA BAJA , QUE CUENTAN CON UN PATIO DESCUBIERTO CON LAS MISMAS CARACTERISTICAS QUE LOS BALCONES.

TODAS LAS UNIDADES CUENTAN CON UN ESPACIO VEHICULAR DESCUBIERTO.

UNIDADES FUNCIONALES DISPONIBLES Y VALORES:

TODAS LAS UNIDADES SON DE TRES AMBIENTES A SABER:
 
FRENTE PLANTA BAJA:

2 UNIDADES FUNCIONALES DE

3 AMB.- 52 M2 CUB. + 21 M2 DESC.
U$D 38.000.- C/U.-

INTERNOS (FRENTE Y CONTRAFRENTE)

PLANTA BAJA:

4 UNIDADES FUNCIONALES DE

3 AMB. - 52 M2 CUB. + 28 M2 DESC.
U$D 39.000.- C/U.-


PRIMER PISO FRENTE

2 UNIDADES FUNCIONALES DE

3 AMB.- 52 M2 CUB. + 4 M2 DESC.
U$D 36.000.- C/U.-


PRIMER PISO FONDO

2 UNIDADES FUNCIONALES DE

3 AMB.- 52 M2 CUB. + 4 M2 DESC.
U$D 35.000.- C/U.-



ANTE CUALQUIER CONSULTA A SU DISPOSICION !!!

CBG BIENES RAICES

---LA INFORMACIÓN GRÁFICA Y ESCRITA CONTENIDA EN EL PRESENTE AVISO ES MERAMENTE A TITULO ILUSTRATIVO E INFORMATIVO Y NO FORMA PARTE DE NINGÚN TIPO DE DOCUMENTACIÓN CONTRACTUAL. 
LAS MEDIDAS Y SUPERFICIES DEFINITIVAS SURGIRÁN DEL TITULO DE PROPIEDAD DEL INMUEBLE REFERIDO. ASIMISMO LOS IMPORTES DE TASAS, SERVICIOS Y EXPENSAS INDICADOS ESTÁN SUJETOS A VERIFICACIÓN. 
EL VALOR DEL INMUEBLE INDICADO EN EL PRESENTE PUEDE SER MODIFICADO SIN PREVIO AVISO. 
OPERACIÓN SUPEDITADA A QUE EL PROPIETARIO CUMPLIMENTE CON LA REG.2371 COTI---

Comodidades

  • Patio Con patio
  • Cochera 1 cochera
  • Parrilla Con parrilla
  • Mascotas Acepta mascotas
  • balcon Con balcon
  • Calefaccion Con calefacción
  • Cerca del mar Cerca del mar
Ver más

Ubicación

Servicio brindado por

buscadorprop

Todos los derechos registrados:

grupotodo
whatsapp Whatsapp email Contactar telefono Llamar
Chatea con nosotros whatsapp