INTI 6 - DESARROLLO EN POZO - DEPARTAMENTOS EN COSTA AZUL

direccion Av. Costanera 4300, Costa Azul

volver Volver al listado
left
right
left
right

Venta

USD 72.000

  • Destacado Destacado
  • Oportunidad
  • Tipo de propiedad Departamentos
  • ambientes 4 Ambientes
  • toilet 1 baño
  • cama 3 Dormitorios
  • Disposicion Disposicion Frente
  • Orientacion Orientación Este
  • Anticipo y cuotas Anticipo y cuotas
  • Superficie cubierta Sup. cubierta 142m2
  • Superficie total Sup. total 154m2
  • Pisos 5 pisos
  • Antiguedad Antigüedad A estrenar
  • Estado Estado Excelente

Acerca de la propiedad

INTI VI

ESTAMOS FRENTE A UN COMPLEJO DE DEPARTAMENTOS DE 5 (CINCO), 4 (CUATRO), 3 (TRES) Y 2 (DOS) AMBIENTES, EL EDIFICIO CUENTA CON 11 UNIDADES FUNCIONALES EN COSTA AZUL, ENTRE SAN BERNARDO Y LA LUCILA DEL MAR, UBICADO EN AV. COSTANERA AL 4300 ENTRE RIVADAVIA Y DUHAU, EL PLAZO DE ENTREGA ES OCTUBRE 2026.

ACTUALMENTE SE ENCUENTRAN A LA VENTA 5 UNIDADES FUNCIONALES.
 
EL EDIFICIO “INTI VI” SE CONSTRUYE EN UNA TORRE DE 5 PISOS, DESPLAZÁNDOSE DE LA SIGUIENTE FORMA:

PRIMER PISO:

U.F. 1) CUATRO AMBIENTES AL FRENTE, CON 79 M2 CUBIERTOS, CONSTA DE COCINA-COMEDOR, TRES DORMITORIOS Y UN BAÑO, DOBLE BALCÓN DE 3 M2 C/U PARA CADA HABITACIÓN Y UN BALCÓN AL FRENTE CON PARRILLA Y LAVADERO MIRANDO AL MAR DE 5 M2, SUMANDO 11 M2 SEMI CUBIERTOS Y TERRAZA COMPARTIDA DE 60 M2
VALOR U$S 94.400.-

U.F. 2) CUATRO AMBIENTES AL FRENTE, CON 78 M2 CUBIERTOS, CONSTA DE COCINA-COMEDOR, TRES DORMITORIOS Y 1 BAÑO, DOBLE BALCÓN DE 3 M2 C/U PARA CADA HABITACIÓN Y UN BALCÓN AL CONTRAFRENTE CON PARRILLA Y LAVADERO DE 4 M2, SUMANDO 10 M2 SEMI CUBIERTOS Y TERRAZA COMPARTIDA DE 60 M2.
VALOR U$S 93.200.-

TERCER PISO:

U.F. 8) TRES AMBIENTES AL CONTRAFRENTE, CON 60 M2 CUBIERTOS, CONSTA DE COCINA-COMEDOR, DOS DORMITORIOS Y UN BAÑO, BALCÓN DE 3 M2 DE UNA HABITACIÓN Y UN BALCÓN AL CONTRAFRENTE CON PARRILLA Y LAVADERO DE 4,5 M2, SUMANDO 7,5 M2 SEMI CUBIERTOS Y TERRAZA COMPARTIDA DE 60 M2.
VALOR U$S 71.898.-

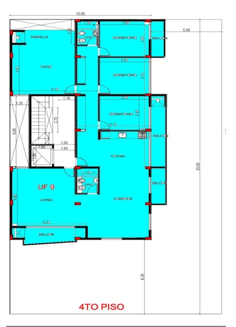
CUARTO PISO:

U.F. 9) PENT-HOUSE DE CUATRO AMBIENTES AL FRENTE, CON 154  M2 CUBIERTOS, CONSTA DE COCINA-COMEDOR, LIVING, TRES DORMITORIOS Y DOS BAÑOS, BALCONES EN TODOS LOS ÁNGULOS DE 3 M2 C/U PARA CADA HABITACIÓN SUMANDO 20 M2 SEMI-CUBIERTOS Y UN QUINCHO CUBIERTO DENTRO DEL DEPARTAMENTO CON PARRILLA Y LAVADERO Y TERRAZA COMPARTIDA DE 60 M2.
VALOR U$S 184.392.-

QUINTO PISO:

U.F. 11) CUATRO AMBIENTES AL FRENTE, CON 72 M2 CUBIERTOS, CONSTA DE COCINA-COMEDOR, LIVING, TRES DORMITORIOS Y 2 BAÑOS, DOBLE BALCÓN DE 3 M2 C/U PARA CADA HABITACIÓN Y UN BALCÓN AL CONTRAFRENTE CON PARRILLA Y LAVADERO DE 4,5 M2, SUMANDO 10,5 M2 SEMI CUBIERTOS Y TERRAZA PRIVADA DE 50 M2.
VALOR U$S 122.700.-

LAS UNIDADES SE ENTREGAN CON: MESADA, BAJO MESADA EN MELAMINA, ALACENA, FRENTE DE PLACARD, TERMOTANQUE 50 LT, COCINA A GAS, CON PLANOS APROBADOS PARA GAS NATURAL, SANITARIOS Y GRIFERÍA DE PRIMERA MARCA, CON ACCESORIOS Y MAMPARA EN LA DUCHA, ASCENSOR DE ULTIMA GENERACION, PRE-INSTALACIÓN DE AIRE ACONDICIONADO EN EL LIVING, BARANDAS DE ALUMINIO CON VIDRIO TEMPLADO, PARRILLA TERMINADA CON LADRILLOS REFRACTARIOS SIN ESTRUCTURA METALICA DE PARRILLA.

CABE ACOTAR QUE CADA UNIDAD VIENE CON SU ESPACIO VEHICULAR DENTRO DEL COMPLEJO.

FACILIDADES DE PAGO: 30% AL BOLETO Y EL RESTO SE FINANCIA HASTA EN 20 CUOTAS. TAMBIEN SE ARMAN FINANCIACIONES A MEDIDA.

CABE DESTACAR QUE ESTAMOS FRENTE A UNA DESARROLLADORA INMOBILIARIA QUE SE ESPECIALIZA EN LA CONSTRUCCIÓN DE VIVIENDAS RESIDENCIALES EN LA COSTA DE BUENOS AIRES. SU ENFOQUE PRINCIPAL SON LOS DEPARTAMENTOS DE ALTA CALIDAD, DISEÑADOS PARA SATISFACER LAS NECESIDADES Y PREFERENCIAS DE SUS CLIENTES. LA DESARROLLADORA SE DESTACA POR SU ATENCIÓN AL DETALLE EN EL DISEÑO, CONSTRUCCIÓN Y LA ATENCIÓN AL CLIENTE, PRIORIZANDO EL COMPROMISO DE ENTREGA EN TIEMPO Y FORMA, SIEMPRE OFRECIENDO EL MEJOR SERVICIO DE VENTA Y POST-VENTA, LO QUE LE VALIÓ SER RECONOCIDA COMO UNA DE LAS PRINCIPALES DESARROLLADORAS INMOBILIARIAS DE LA ZONA, QUE SE PUEDE APRECIAR EN LAS OBRAS TERMINADAS COMO INTI "II", "III", "IV" Y "V" A EFECTOS DE EVALUAR ANTES DE DECIDIR SU COMPRA.


ANTE CUALQUIER CONSULTA A SU DISPOSICION !!!

CBG BIENES RAICES

---LA INFORMACIÓN GRÁFICA Y ESCRITA CONTENIDA EN EL PRESENTE AVISO ES MERAMENTE A TITULO ILUSTRATIVO E INFORMATIVO Y NO FORMA PARTE DE NINGÚN TIPO DE DOCUMENTACIÓN CONTRACTUAL. 
LAS MEDIDAS Y SUPERFICIES DEFINITIVAS SURGIRÁN DEL TITULO DE PROPIEDAD DEL INMUEBLE REFERIDO. ASIMISMO LOS IMPORTES DE TASAS, SERVICIOS Y EXPENSAS INDICADOS ESTÁN SUJETOS A VERIFICACIÓN. 
EL VALOR DEL INMUEBLE INDICADO EN EL PRESENTE PUEDE SER MODIFICADO SIN PREVIO AVISO. 
OPERACIÓN SUPEDITADA A QUE EL PROPIETARIO CUMPLIMENTE CON LA REG.2371 COTI---

 

Comodidades

  • Patio Con patio
  • Cochera 1 cochera
  • Parrilla Con parrilla
  • Zona Centrica Zona céntrica
  • Con vista al mar Con vista al mar
  • balcon Con balcon
  • Calefaccion Con calefacción
  • Cerca del mar Cerca del mar
Ver más

Ubicación

Servicio brindado por

buscadorprop

Todos los derechos registrados:

grupotodo
whatsapp Whatsapp email Contactar telefono Llamar
Chatea con nosotros whatsapp